🏡 Jasne, przestronne mieszkanie 2-pokojowe | Nova Stoczniova, Zakrzów 🏡
Na sprzedaż funkcjonalne i komfortowe mieszkanie położone na 2. piętrze kameralnego, dwukondygnacyjnego budynku na nowoczesnym osiedlu Nova Stoczniova we Wrocławiu. Inwestycja oddana w styczniu 2022 roku.
Mieszkanie wyróżnia się wysokim komfortem, prywatnością i niską zabudową. Z okien i balkonu roztacza się widok na zieleń – drzewa rosną tuż przy oknach. Ekspozycja zachodnia zapewnia naturalne światło przez cały dzień.
🏠 Metraż i układ mieszkania:
- Powierzchnia użytkowa: 48,96 m²
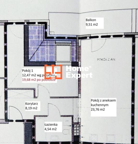
- Powierzchnia po podłodze: ponad 56 m² (dzięki skosom mieszkanie oferuje znacznie więcej przestrzeni niż w dokumentach)
Rozkład:
- Sypialnia: 12,47 m² (ok. 19,68 m² po podłodze)
- Salon z aneksem kuchennym: 23,76 m²
- Korytarz: 8,19 m² – duża przestrzeń do przechowywania
- Łazienka: 4,54 m²
- Balkon: 9,51 m²
✅ Standard i wykończenie:
- Mieszkanie w pełni gotowe do zamieszkania, bez potrzeby remontu
- Funkcjonalny układ, dużo miejsca do przechowywania
- Drewniane blaty kuchenne i elementy mebli z litego drewna
- Kanapa z tkaniny odpornej na zwierzęta (w mieszkaniu nigdy nie było zwierząt)
- Zamknięty, monitorowany parking na terenie osiedla
- Zadbane, zielone części wspólne
📍 Lokalizacja i otoczenie:
- Doskonała komunikacja:
- Przystanki autobusowe: Zakrzów 5 min, Os. Sobieskiego 10 min
- Stacja kolejowa Wrocław Zakrzów 8 min pieszo
- Sklepy i usługi: Żabka (5 min), Biedronka (10 min), Lidl (15 min), apteki, szkoły, żłobki, 3 przedszkola w promieniu 5 minut
- Aktywność i rekreacja: Aquapark Zakrzów 15 min, Wrocławska Arena Sportu (boiska, pumptrack, place zabaw), CitySports (squash, badminton, fitness), wały nad rzeką Dobrą ok. 1 km, Park Pawłowicki 10 min rowerem
- Zakupy i rozrywka: CH Korona i CH Młyn 7 min samochodem
- Szybki zjazd na obwodnicę Wrocławia
💡 Podsumowanie: To mieszkanie to idealne połączenie komfortu, nowoczesnego wykończenia i spokojnej lokalizacji, a jednocześnie blisko miasta. Doskonałe dla osób szukających własnego mieszkania gotowego do wprowadzenia, jak i dla inwestorów pod wynajem.
Interesuje Cię zakup tego mieszkania?
ZADZWOŃ! 724001956
Agent prowadzący: Eliza Suchojad
e-mail: eliza.suchojad@homeexpert.pl
ul. Inżynierska 49 / U25, 53-228 Wrocław
www.homeexpert.pl/kontakt
Numer oferty: 20778/3584/OMS