Opis
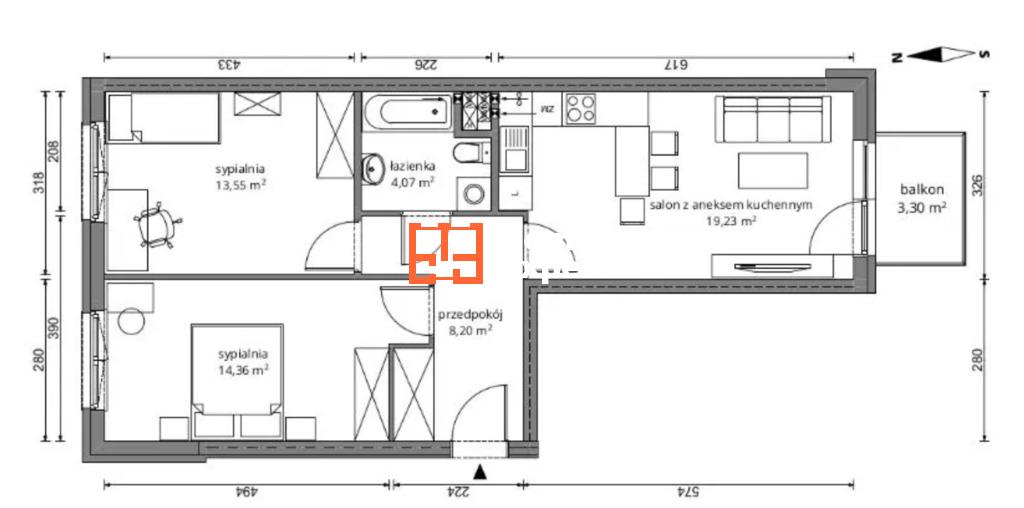
Mam przyjemność przedstawić Państwu atrakcyjne, rozkładowe mieszkanie z 2016 roku o powierzchni 59,61 m2, znajdujące się na wrocławskim osiedlu Muchobór Mały. Mieszkanie zostało zaprojektowane przez STUDIO PROJEKTOWE WEREMCZUK.
Mieszkanie znajduję się na I piętrze. (Budynek z windą)
Składa się z:
– salonu z aneksem kuchennym – 19,23 m2
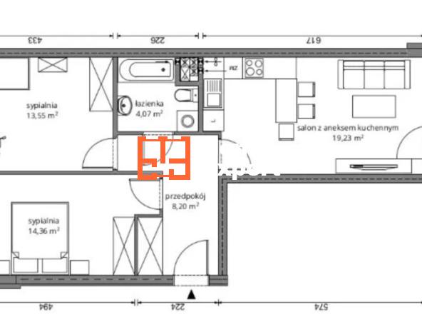
– sypialnia I – 14,36 m2
– sypialnia II – 13,55 m2
– przedpokój – 8,20 m2
– łazienka – 4,07 m2
– balkon – 3,3 m2
Mieszkanie zostało wykończone na wysoki standard. Wszystkie meble w mieszkaniu zostały wykonane na wymiar. Wszelkie zastosowane materiały są z wysokiej półki – farby FLUGGER, podłoga MYFLOOR CHALET, armatura KLUDI, VILLEROY BOCH, odpływ KESSEL, drzwi przylgowe lakierowane POL-SKONE.
Nieruchomość została wyposażona sprzęty PREMIUM takie jak:
– Lodówka w zabudowie meblowej HOTPOINT ARISTON
– Piekarnik SAMSUNG DUALCOOK
– Płyta indukcyjna SAMSUNG
– Zmywarka BEKO
– Okap podszafkowy GALVAMET
– Telewizor SONY 49 CALI 4K
– Soundbar SONY
– Pralka SAMSUNG ECO BUBBLE AD WASH
Wymienione wyposażenie jest w cenie mieszkania.
Osiedle, na którym zlokalizowana jest nieruchomość zostało zaprojektowane z dbałością o zieleń oraz wspólną przestrzeń dla mieszkańców. Osiedle posiada swój prywatny plac zabaw, szlabany wjazdowe na wspólny parking oraz rowerownię w garażu podziemnym.
W pobliżu mieszkania znajdziemy liczne tereny zielone (PARK TYSIĄCLECIA), liczne trasy rowerowe, oraz spacerowe. W niedalekim sąsiedztwie znajdziemy szkołę podstawową i przedszkola oraz liczne przychodnie lekarskie oraz przystanek autobusowy.
W bezpośredniej okolicy znajdziemy sklepy takie jak: FACTORIA PARK,(CARREFOUR, EMPIK, MEDIA EXPERT, CCC, DEICHMAN, KAKADU, PIEKARNIE, SKLEPY MIĘSNE, APTEKA, RESTAURACJE ) WROCŁAW FASHION OUTLET(LICZNE SKLEPY ODZIEŻOWE I NIE TYLKO) BIEDRONKA, STACJA BENZYNOWA SHELL.
Lokalizacja gwarantuje szybki dojazd do AOW, AUTOSTRADY A4, BIELAN WROCŁAWSKICH CZY LOTNISKA.
OPŁATY MIESIĘCZNE
– opłaty eksploatacyjne + zaliczka na wodę zimną i ciepłą + zaliczka na ogrzewanie + fundusz remontowy – 750 – 800zł miesięcznie
– prąd według zużycia około 120zł miesięcznie
Interesuje Cię zakup tego mieszkania?
Numer oferty: 17831/3584/OMS
ZADZWOŃ! 724 773 779 (tel. preferowany – zawsze dostępny)
Agent prowadzący : Piotr Ogłaza
e-mail: piotr.oglaza@homeexpert.pl
Agencja Nieruchomości HOME EXPERT
ul. Inżynierska 49 / U25 (na parterze w biurowcu CORTE VERONA)
53-228 Wrocław www.homeexpert.pl/kontakt