Lokalizacja

  • Adres okolice ul. Augusta Mosbacha
  • Miasto Wrocław
  • Województwo Dolnośląskie

Szczegóły

  • Numer oferty: 17716/3584/OMS
  • Cena: 870.000 zł
  • Metraż: 61.3 m2
  • Liczba pokoi: 3
  • Garaż: 1
  • Typ nieruchomości: Mieszkanie
  • Status nieruchomości: Na sprzedaż

Opis

Okazja!

Mieszkanie po generalnym remoncie, z pełnym wyposażeniem w cenie! W ramach prac zmodernizowano wszystkie instalacje: gazową, elektryczną oraz wodno-kanalizacyjną. Wnętrze charakteryzuje się drewnianymi deskami podłogowymi, gładziami na ścianach i sufitach.
Drzwi antywłamaniowe zapewniają bezpieczeństwo, a projektowana zabudowa meblowa, przestronna garderoba o wysokości 3 metrów, meble i oświetlenie reprezentują klasykę polskiego i duńskiego designu, uzupełnione modernistyczną sztukaterią. Do mieszkania przynależy także piwnica o powierzchni ponad 10 m2.


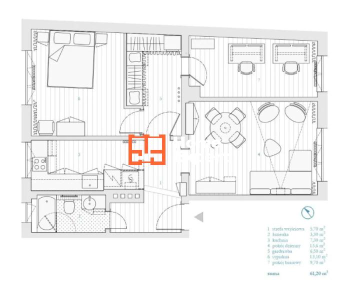
ROZKŁAD 61,23 m2:
1. Strefa wejściowa: 5,70 m2
2. Łazienka: 3,30 m2
3. Kuchnia: 7,30 m2
4. Pokój dzienny: 15,60 m2
5. Garderoba: 6,50 m2
6. Sypialnia: 13,10 m2
7. Biuro/sypialnia: 9,70 m2


W budynku została wymieniona instalacja elektryczna, drzwi wejściowe, odmalowana klatka schodowa, a schody oczekują na odświeżenie.


OPŁATY:
– Czynsz do administracji: 350 zł
– Prąd i gaz według zużycia


Doskonała lokalizacja ze względu na bliskość rzeki, komunikację miejską oraz centralne położenie. W okolicy znajduje się również Wydział Architektury Politechniki Wrocławskiej.

Cena: 870 000 zł.


GORĄCO POLECAM I ZAPRASZAM NA BEZPŁATNĄ PREZENTACJĘ!!!
Interesuje Cię zakup tego mieszkania?
ZADZWOŃ!
724 002 161

Expresowy Sprzedawca: Volodymyr Shymkiv
e-mail: wlodzimierz.shymkiv@homeexpert.pl

ul. Inżynierska 49 / U25
53-228 Wrocław
Biuro czynne od poniedziałku do piątku w godzinach od 9:00 do 19:00
oraz w soboty od 9:00 do 17:00

tel.: +48 724 002 161
Nr oferty: 17716/3584/OMS

Dane kontaktowe

Zobacz oferty
Home Expert

O tej nieruchomości