okolice ul. Braterskiej NOWE2014/WINDA/2 GARAŻE

  • 1.490.000 zł
  • 10.996 zł

Lokalizacja

  • Adres okolice ul. Braterskiej
  • Miasto Wrocław
  • Województwo Dolnośląskie
  • Region Wrocław-Krzyki

Szczegóły

  • Numer oferty: 16021/3584/OMS
  • Cena: 1.490.000 zł
  • Metraż: 135.5 m2
  • Liczba pokoi: 5
  • Garaż: 1
  • Rok budowy: 2014
  • Typ nieruchomości: Mieszkanie
  • Status nieruchomości: Na sprzedaż

Opis

SUPER OFERTA!

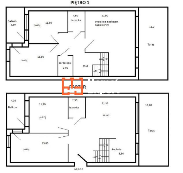
Apartament 5-pokojowy w nowszym budynku z windą oraz ogrzewaniem miejskim na zamkniętym osiedlu na Krzykach Partynicach – okolice ul. Braterskiej.

Słoneczny, dwupoziomowy apartament o powierzchni 135,5m.

Mieszkanie mieści się na 5-6 piętrze. 

Z każdego pokoju wyjście na balkon oraz taras główny przy części dziennej.

Na poziomie pierwszym znajdą Państwo salon z bezpośrednim wyjściem na teras, kuchnia, łazienka, 2 pokoje oraz przedpokój.

Na poziomie drugim 2 pokoje, łazienka, garderoba oraz sypialnia ze strefa kąpielowa.

Apartament posiada łącznie 2 tarasy i 2 balkony.

Apartament posiada na garaże podziemne zamykane (płatne dodatkowo)

Dodatkowym atutem apartamentu jest jego położenie oraz strefa odpoczynku wśród zieleni, płac zabaw dla dzieci.

Osiedle strzeżone z doskonałym połączeniem komunikacji miejskiej. 

Cena: 1 490 000 zł – do negocjacji

ZAPRASZAM NA BEZPŁATNĄ PREZENTACJĘ

Interesuje Cię zakup tego mieszkania?

ZADZWOŃ! 724 773 779 (tel. preferowany – zawsze dostępny)

Expresowy Sprzedawca: mgr inż. PIOTR OGŁAZA

e-mail: piotr.oglaza@homeexpert.pl

Numer oferty: 16021/3584/OMS

Więcej podobnych ofert znajdziesz na WWW.HOMEEXPERT.PL

Dane kontaktowe

Zobacz oferty
Piotr  Ogłaza

O tej nieruchomości