Lokalizacja

  • Adres Okolice ul. Stabłowicka
  • Miasto Wrocław
  • Województwo Dolnośląskie
  • Region Wrocław-Fabryczna

Szczegóły

  • Numer oferty: 16857/3584/OMS
  • Cena: 750.000 zł
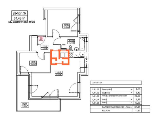
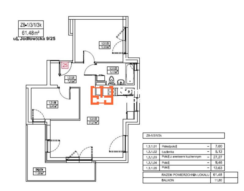
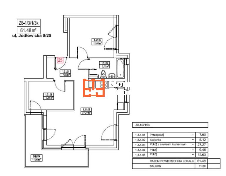
  • Metraż: 61.48 m2
  • Liczba pokoi: 3
  • Garaż: 1
  • Rok budowy: 2020
  • Typ nieruchomości: Mieszkanie
  • Status nieruchomości: Na sprzedaż

Opis

Zapraszamy do odkrycia wyjątkowego mieszkania w malowniczych Słonecznych Stabłowicach.


Powierzchnia tego mieszkania wynosi 61,48 m², a jego funkcjonalny rozkład gwarantuje komfort i przestrzeń dla całej rodziny. Przywitaj gości w przestronnym przedpokoju o powierzchni 7,00 m², a następnie relaksuj się w nowoczesnej łazience o powierzchni 5,12 m². Salon z jadalnią i aneksem kuchennym o powierzchni 28,27 m² stanowi serce tego mieszkania i jest idealnym miejscem do spędzania czasu z bliskimi. Z salonu można wyjść na przytulny balkon w kształcie litery L, wyłożony wysokiej jakości sztuczną trawą, który zapewnia idealny klimat do odpoczynku.


Mieszkanie jest narożne, co oznacza, że graniczy tylko na krótkim odcinku z sąsiadami, co gwarantuje ciszę i kameralność. W sypialni oraz przedpokoju znajduje się duża szafa w zabudowie, co ułatwia przechowywanie rzeczy. Dodatkowy, najmniejszy pokój może pełnić różne funkcje, od gabinetu po pokój dziecięcy.


To osiedle to raj dla osób aktywnych. Znajduje się tu klub mieszkańca z siłownią, sala zabaw dla dzieci oraz stół do tenisa stołowego. W okolicy jest wiele placów zabaw i terenów zielonych, idealnych na spacery i aktywności na świeżym powietrzu. Osiedle stanowi również doskonały punkt wypadowy na wycieczki rowerowe wzdłuż wałów i w kierunku lasu Mokrzańskiego.


Do mieszkania przynależy miejsce postojowe w garażu podziemnym, a wjazd na osiedle jest zabezpieczony szlabanem. Osiedle jest strzeżone, a dyżurka ochrony znajduje się na parterze budynku, co zwiększa poczucie bezpieczeństwa i umożliwia pozostawianie paczek przez firmy kurierskie.


Nie przegap tej unikalnej okazji, która oferuje doskonałe warunki mieszkania i styl życia. Skontaktuj się z nami już teraz, aby umówić się na oglądanie i przekonać się, że to jest to, czego szukasz!

Interesuje Cię zakup tego mieszkania?

Numer oferty: 16857/3584/OMS

ZADZWOŃ! 724 773 779 (tel. preferowany – zawsze dostępny)

Agent prowadzący : Piotr Ogłaza

e-mail: piotr.oglaza@homeexpert.pl

Agencja Nieruchomości HOME EXPERT

ul. Inżynierska 49 / U25 (na parterze w biurowcu CORTE VERONA)

53-228 Wrocław www.homeexpert.pl/kontakt

Dane kontaktowe

Zobacz oferty
Home Expert

O tej nieruchomości