okolice ul. Zakładowej NOWE/WINDA/BALKONY/GARAŻ

  • 1.180.000 zł
  • 15.325 zł
Na sprzedaż Rynek wtórny
okolice ul. Zakładowej NOWE/WINDA/BALKONY/GARAŻ
  • 1.180.000 zł
  • 15.325 zł

Lokalizacja

  • Adres okolice ul. Zakładowej
  • Miasto Wrocław
  • Województwo Dolnośląskie
  • Region Wrocław-Psie Pole

Szczegóły

  • Numer oferty: 19873/3584/OMS
  • Cena: 1.180.000 zł
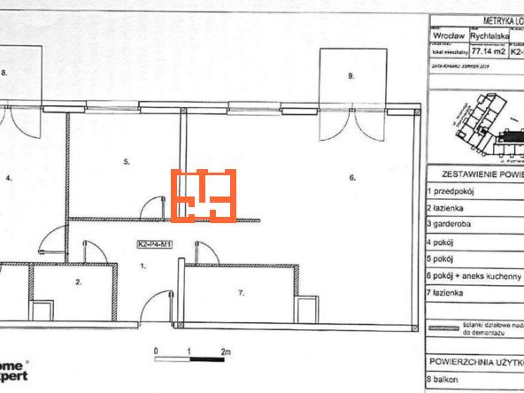
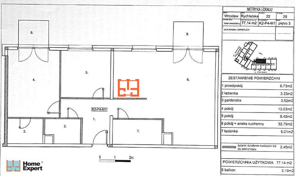
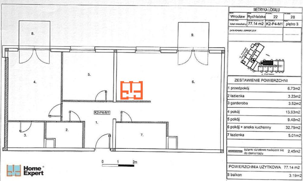
  • Metraż: 77 m2
  • Liczba pokoi: 3
  • Garaż: 1
  • Rok budowy: 2019
  • Typ nieruchomości: Mieszkanie
  • Status nieruchomości: Na sprzedaż

Opis

Mieszkanie 3 pokojowe jest zlokalizowane na Promenadach Wrocławskich 77m2, 3 pokoje, na 3 piętrze, z windą oraz 2 miejsca postojowe obok siebie w garażu podziemnym.

Istnieje możliwość wydzielenia czwartego pokoju.

Mieszkanie gotowe do zamieszkania, w pełni wykończone i wyposażone: klimatyzacja, zmywarka, piekarnik, okap, pralka, suszarka, płyta indukcyjna, lodówko-zamrażarka, łóżko małżeńskie, narożnik. Do mieszkania przynależą dwa balkony, dwie łazienki (jedna z przestronnym prysznicem, druga z wanną).

W mieszkaniu jest zamontowana szafa przy wejściu, zestaw mebli kuchennych oraz mebli telewizyjnych, a także bardzo praktyczna i pojemna garderoba.

Dostęp do internetu i telewizji kablowej oferowany jest przez wielu operatorów.

Okna skierowane na północny zachód, ogrzewanie miejskie, pełna własność KW.

Na dachu znajduje się dostępny dla właścicieli taras z siłownią na wolnym powietrzu.

Mieszkanie znakomicie sprawdzi się dla osób, które z jednej strony chcą być w centrum, a z drugiej cenią sobie bliskość terenów zielonych, bliskości rzeki, ścieżek rowerowych, promenady miejskiej.

W pobliżu znakomicie rozwinięta infrastruktura usługowo-handlowa.

Wiele połączeń komunikacji miejskiej, tramwajowych i autobusowych.

Miejsca garażowe dodatkowo płatne 55 000 zł za miejsce.  

Cena: 1 180 000 zł 

Interesuje Cię zakup tego mieszkania?

Numer oferty: 19873/3584/OMS

ZADZWOŃ! 724 773 779 (tel. preferowany – zawsze dostępny)

Agent prowadzący : Piotr Ogłaza

e-mail: piotr.oglaza@homeexpert.pl

Agencja Nieruchomości HOME EXPERT

ul. Inżynierska 49 / U25 (na parterze w biurowcu CORTE VERONA)

53-228 Wrocław www.homeexpert.pl/kontakt

Dane kontaktowe

Zobacz oferty
Piotr  Ogłaza

O tej nieruchomości